找回密码
 邀请注册

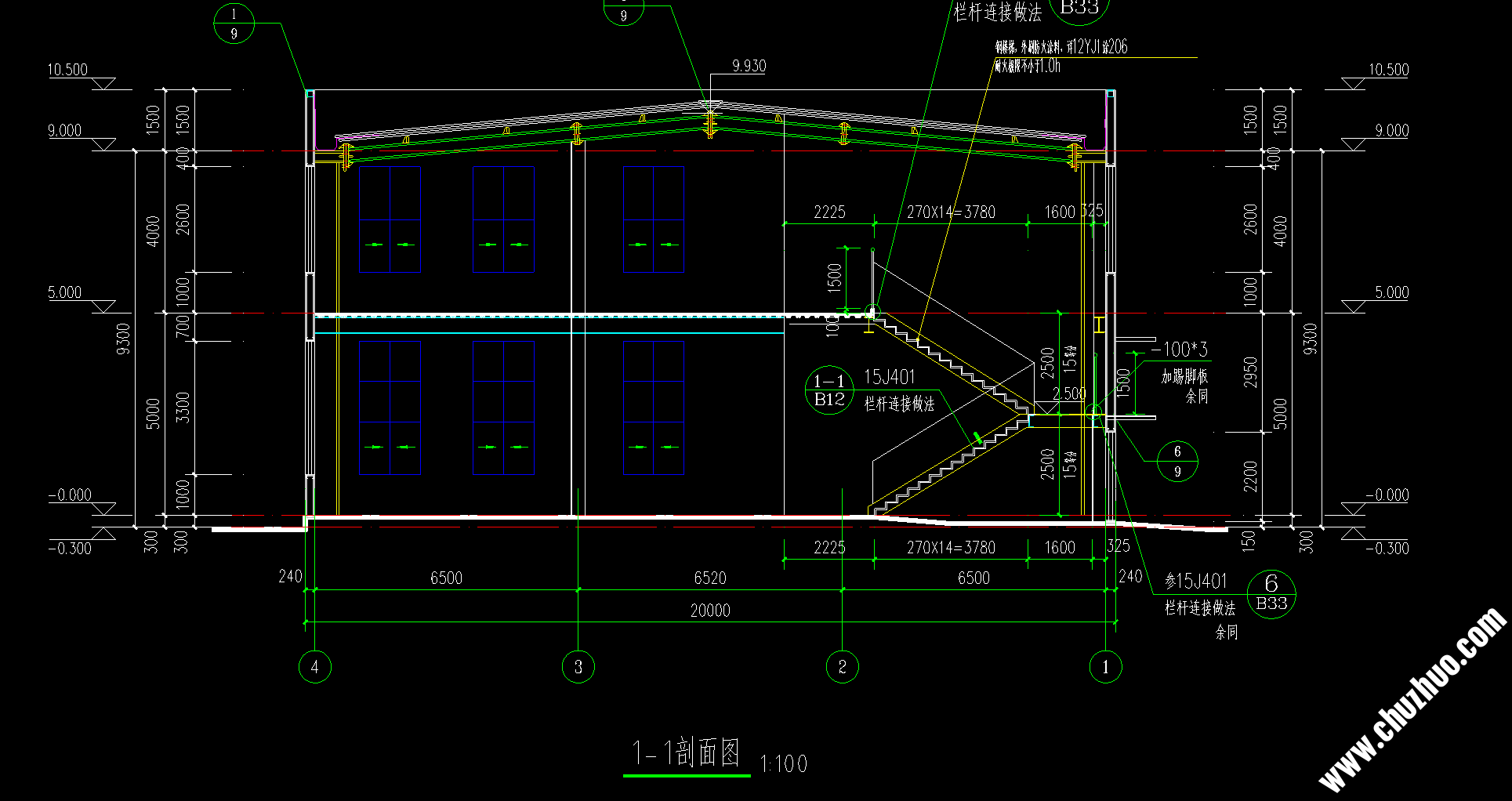
新建两层2000m(2F20X50)标准化厂房

[复制链接]
goal 发表于 2025-11-30 10:31:29 | 显示全部楼层 |阅读模式
4608_14.png
 楼主| goal 发表于 2025-11-30 10:31:39 | 显示全部楼层
4609_14.png

QQ|手机版|楚卓网 ( 浙ICP备12031649号-2|浙公网安备33010602001135号 )

GMT+8, 2025-12-16 06:58

Powered by Discuz! X3.5

© 2001-2025 Discuz! Team.

快速回复 返回顶部 返回列表