找回密码
 邀请注册

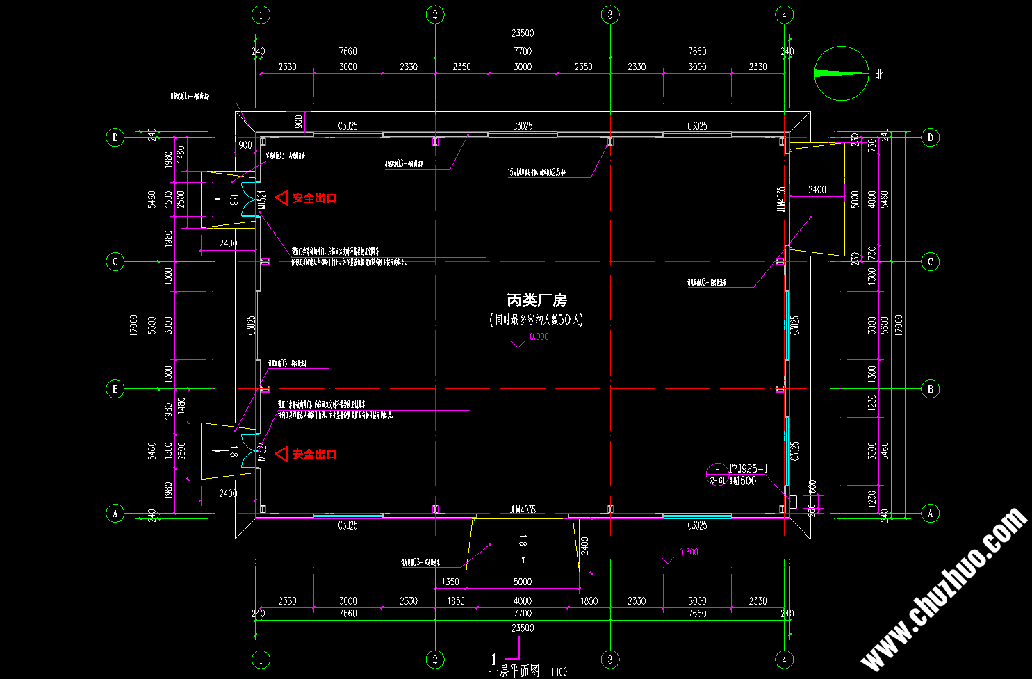
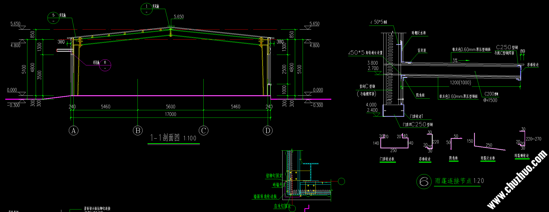
400㎡(17.0m×23.5m)标准化生产车间

[复制链接]
goal 发表于 2025-11-30 10:21:36 | 显示全部楼层 |阅读模式
01c9705a-3207-41a8-b185-85e5a5761aa5.png
 楼主| goal 发表于 2025-11-30 10:21:47 | 显示全部楼层
18ae9212-4214-4a67-9114-bd07c20448fb.png
 楼主| goal 发表于 2025-11-30 10:22:00 | 显示全部楼层
b6b323de-f930-4a88-b012-9328fe3b23f8.png

QQ|手机版|楚卓网 ( 浙ICP备12031649号-2|浙公网安备33010602001135号 )

GMT+8, 2025-12-16 06:58

Powered by Discuz! X3.5

© 2001-2025 Discuz! Team.

快速回复 返回顶部 返回列表