找回密码
 邀请注册

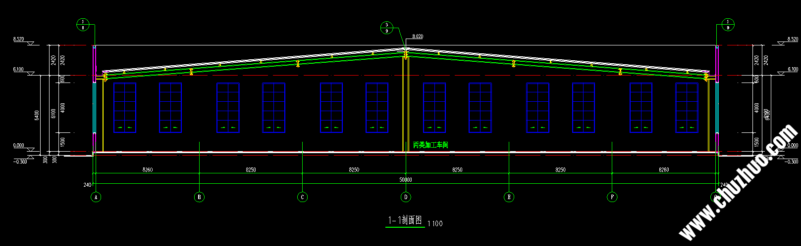
新建 2000平方(1F 40MX50M)钢结构厂房

[复制链接]
goal 发表于 2025-11-30 10:18:32 | 显示全部楼层 |阅读模式
5fa5a9bd-56d6-4788-b993-173565482b3f.png
 楼主| goal 发表于 2025-11-30 10:18:49 | 显示全部楼层
e301c961-5f92-4b2a-baae-47a6152e4de1.png
 楼主| goal 发表于 2025-11-30 10:19:00 | 显示全部楼层
839bd2bf-089e-4058-8417-ced803e8beef.png

QQ|手机版|楚卓网 ( 浙ICP备12031649号-2|浙公网安备33010602001135号 )

GMT+8, 2025-12-16 06:58

Powered by Discuz! X3.5

© 2001-2025 Discuz! Team.

快速回复 返回顶部 返回列表